Machado as built.

Grass Valley, CA.

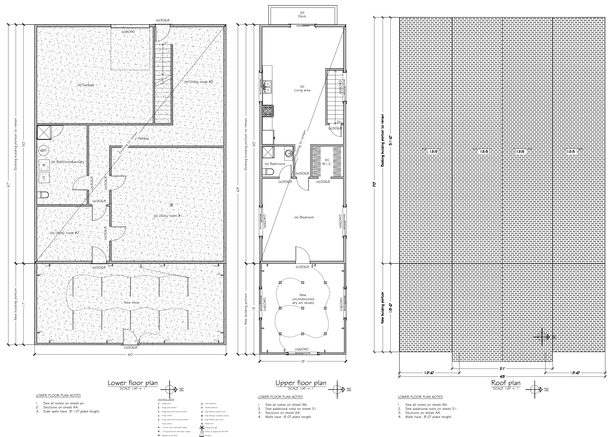
Machado As Built project focuses on bringing an unpermitted addition up to current code, ensuring safety, compliance, and functionality. This process involved detailed documentation, precise measurements, and condition assessments to guide informed decisions for renovation and compliance. The project provides a comprehensive foundation to meet today’s standards while enhancing the existing structure.

Previous
Previous

Baker St

Next
Next

Milhous ADU